В небо Люберцы Инициативная улица, 7В
Отель В небо в Люберцах по адресу Инициативная улица, 7В: официальный сайт, цены, отзывы и рейтинг посетителей, телефон, адрес.
Информация об отеле В небо актуализирована в феврале 2026 года:
В небо
Гостиница
+7 (966) 012-51-51
- Быстрое заселение.; Внимательный сервис.; Доступная цена.; Удобное расположение.; Большие номера.
- Все плюсы и минусы из отзывов
-
Инициативная улица, 7Вм. Некрасовка 2,9 км
-
Открыто круглосуточно
*фото не хранятся на нашем сайте и загружаются напрямую из Я.карт
Мнение эксперта
Елена Соколова
Гостиничный Аналитик | Основатель сервиса "ОтельКонтроль".
"Семь лет в управлении сетями отелей научили меня видеть не только звезды на фасаде, но и реальную ценность внутри. Моя цель – помочь вам не переплачивать за ненужное и найти лучшее соотношение цены и качества для вашего идеального отдыха или командировки."
Гостиница «В небо» (Люберцы, ул. Инициативная, 7В) — современный апартотель, открытый в 2019 году. Расположен вблизи центра, парка и транспортных узлов. Предлагает комфортные номера (от 2000 до 3800 ₽/ночь) с кондиционером, Wi-Fi, кухонными уголками, санузлами и звукоизоляцией.
Удобства: — Бесплатная парковка, велопарковка — Круглосуточная стойка регистрации, лифт — Трансферы (платные: аэропорт, вокзал, ТЦ) — Прачечная, химчистка, уборка — Детская площадка, прокат велосипедов
Дополнительно: телевизор, фен, посуда, микроволновка. Заезд — с 14:00, выезд — до 12:00.
apart-vnebo.ru | ☎ +7 (966) 012-51-51 | Круглосуточно.
wi-fi
без питания
велопарковка
вентилятор
время выезда 12:00
время заезда 14:00
дата постройки 2019
до центра меньше 1 км
до центра меньше 2 км
до центра меньше 3 км
до центра меньше 5 км
интернет в номерах
интернет на всей территории отеля
кондиционер
консьерж-сервис
круглосуточная стойка регистрации
кухня/кухонный уголок в номере
лифт
микроволновка
номера для некурящих
номера со звукоизоляцией
парковка бесплатная
питание не включено
плита
посуда
прачечная
санузел в номере
стиральная машина
тапочки
телевизор
трансфер
трансфер до/от аэропорта
трансфер до/от горнолыжного склона
трансфер до/от торгового центра
трансфер от/до железнодорожного вокзала
трансфер платный
уборка
ускоренная регистрация заезда/отъезда
утюг
фен
халат
химчистка
холодильник
цена номера ночь 2000–3800 ₽
чай/кофе в номерах
чайник
Контактная информация как добраться?
- Полный адрес: Московская область, Люберцы, Инициативная улица, 7В
- Ближайшая станция метро: Некрасовка
- Район: городской округ Люберцы
- Все телефоны отеля: +7 (966) 012-51-51
- Сайт: https://apart-vnebo.ru/
- Whatsapp: https://wa.me/79660125151
Режим работы сегодня
Понедельник
Круглосуточно
Вторник
Круглосуточно
Среда
Круглосуточно
Четверг
Круглосуточно
Пятница
Круглосуточно
Суббота
Круглосуточно
Воскресенье
Круглосуточно
Услуги
- Парковка
- Цена номера
- ночь
- 2000–3800 ₽
- Количество звёзд
- без звёзд
- Кондиционер в номере
- Оплата картой
- Оснащение бизнес-центра
- сканирование
- принтер
- ксерокопирование
- Дата постройки
- 2019
- Тип гостиницы
- апартотель
- Частота уборки
- ежедневно
- Рядом с центром
- Рядом парк
Номера и цены – 4 предложений
Скачать прайс-лист В небо на февраль 2026 года
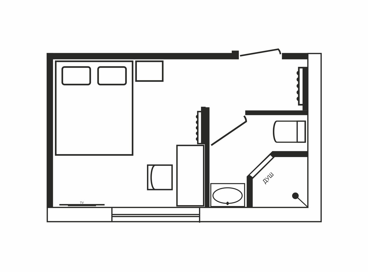
Стандартный номер
Площадь номера - 26 м²Макс. кол-во человек - 2Кровать1 или 2 отдельные кроватиВид на городWi-Fi бесплатноЗавтрак доп. оплатаУборка номера ежедневноПарковка бесплатная, на территории отеляКофеварка/чайник • Мини-бар • Сейф • Фен в номе
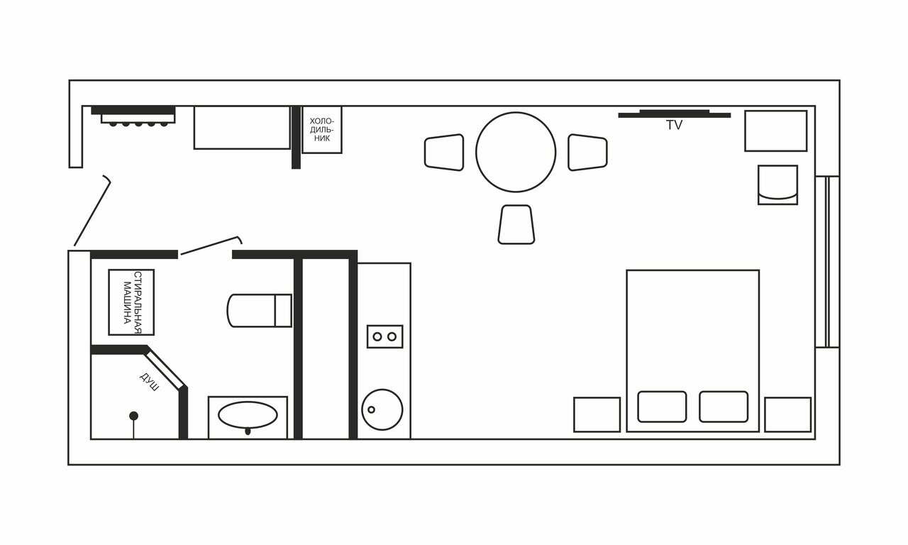
Дуплекс
Площадь номера - 36 м²Макс. кол-во человек - 4Кровать1 большая двуспальная кроватьДиван1 диван-кроватьВид на городWi-Fi бесплатноЗавтрак доп.оплатаУборка номера ежедневноПарковка беслатная, на территории отеляКофеварка/чайник • Мини
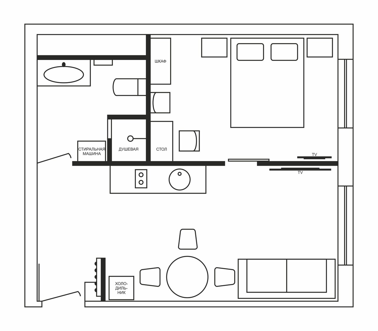
Cемейный номер
Площадь номера - 43 м²Макс. кол-во человек - 3Кровать 1 двуспальная или 2 односпальныеДиван1 диван-кроватьВид на городWi-Fi бесплатноУборка номера ежедневноЗавтрак доп. оплатаПарковка бесплатная, на территории отеляКофеварка/чайник
Люкс
Площадь номера - 102 м²Макс. кол-во человек - 2Кровать1 King BedВид на городWi-Fi бесплатноЗавтрак включёнКомплимент бутылка вина и фруктыУборка номера ежедневноПарковка бесплатная, на территории отеляПредоставляется выбор подушек
Адрес гостиницы на карте
Узнайте, как доехать до В небо на карте ЛюберцовМетро
Некрасовка
2,9 км
Котельники
3,3 км
Жулебино
3,3 км
Остановки
МЦД Люберцы
225 м
По требованию
310 м
Люберецкие торговые ряды
370 м
Инициативная улица
510 м
Кладбище
690 м
Достоинства и недостатки из отзывов
Главные моменты из отзывов (орфография сохранена):
- Отличные апартаменты.
- Хорошая обстановка.
- Удобные кровати.
- Кондиционеры в каждой комнате.
- Вежливый персонал.
- Чистое бельё и полотенца.
- Большие номера.
- Быстрое заселение.
- Чистота и аккуратность.
- Адекватная стоимость.
- Стиральная машина в номере (в некоторых апартаментах).
- Удобная система заселения (ключ в сейфе).
- Внимательный сервис.
- Хороший ремонт и новая мебель.
- Наличие одноразовых принадлежностей.
- Тишина и хорошая шумоизоляция (в некоторых отзывах).
- Работающий Wi-Fi и телевизор.
- Доступная цена.
- Наличие кухни и бытовой техники.
- Удобное расположение.
- Отказ в скидке или компенсации за проблемы.
- Нежилое состояние апартаментов (в одном отзыве).
- Невымытая посуда и варочная панель.
- Отсутствие горячей воды.
- Протекающие краны и неработающий слив.
- Маленькая комната (в одном отзыве).
- Плохая уборка.
- Тараканы в номере.
- Плохая шумоизоляция (в некоторых отзывах).
- Высокая цена в праздники.
- Сломанная мебель.
- Нет навигации (сложно найти вход).
- Уборка в номере только раз в три дня
- Грязные полотенца с пятнами.

Удобная система с заселением, ключ лежит в сейфе, что позволяет задать в любое время суток. В комнате чисто, персонал вежливый. Комната маленькая, но для своей цены все отлично, мебель новая, ремонт хороший.
Отличный апарт отель. Доступная цена, отличный вид, вежливый персонал. Брали евродвушку (Бизнес номер), практичная, не убитая. Всё понравилось!
Отличный отель приезжал в командировку был 2 раза, уборка в номере один раз в три дня полотенца, шампунь, мыло выдают. Номер с двухместной кроватью, большим телевизором, электроплитой, есть кружки тарелки кострюля и сковорода, нож вилки ложки доска, можно попросить утюг и гладильную доску. Столик два стула, стиральная машина.
Всё очень понравилось! Чисто, уютно, персонал внимательный и вежливый. Комнаты светлые, обставлены со вкусом, есть всё необходимое для комфортного проживания.
Чистые, свежие апартаменты . Удобные кровати и белоснежное белье. Есть одноразовые индивидуальные принадлежности и вся необходимая посуда на кухне.
Отличное место! Спасибо большое! Стоимость адекватная! Апартаменты отличные. Чисто. Обстановка замечательная. Был неоднократно. Очень понравилось. Собираемся скоро снова)) Рекомендую!
Убираются плохо, белые полотенца — желтые, а некоторые с пятнами (что сразу очень испортило впечатление), стаканы в пятнах, пришлось самим перемывать. Варочная панель грязная. Понятное дело, что многое завит от постояльцев, но ребята, полотенца для лица было противно брать в руки. Шумоизоляция никакая, слышно все, что происходит в холле. Цена на праздники была 4000 за двухкомнатные апартаменты. Из плюсов при -23 было тепло, есть Большой холодильник, в каждой комнате кондиционер. Заселили быстро, общаются вежливо. Исправте ситуацию с уборкой и полотенцами.
Были несколько раз. Лучший отель в окрестностях) чисто, уютно, свежее бельё и полотенца, кондиционер-есть всё для того чтобы несколько дней жить
Всё супер! Отличное заселение,чистый и опрятный номер,тихо,уютно. Телевизор, вайфай работает, постельное белье, полотенца чистые. Рекомендую
Ужас. Дали нежилую квартиру. Санузел весь переломный (кран протекает, в душевой не работал слив, в туалете тоже, горячей воды не было), на нашу просьбу, о решении проблемы с горячей водой не отреагировали, только на следующий день мы сами несколько раз попросили горничную и также по поводу зассоров. В номере были тараканы, и не работали двери, сломанные стулья. В таком случае мы попросили скидку или не доплачивать за поздний выезд, нам отказали. Поговорив с работниками в самом здании, мы узнали что нам дали самую плохую квартиру, которую никто чинить не собирается и она ‘ходовая’, стоит она столько же сколько и хорошие квартиры. В переписки нам предъявили, что мы сами виноваты и они ничего нам не должны.
Останавливались с приятельницей в студии на 17 этаже. 5 звезд стоит поставить только из-за вида. Не слышно соседей, самое необходимое (магазины, рынок, кафе, ТЦ) в шаговой доступности. До метро Некрасовка можно доехать на автобусе за минут 15 (автобусы ходят часто) Проблем с ожиданием лифта не возникало. Очень небольшое пространство, конечно, но для студии это естественно. Единственный минус — душно с закрытыми окнами, необходимо проветривать помещение каждые полтора часа
Комфортно, высоко и удобно. Уютные и кристалльно чистые апартаменты по доступной цене. Из минусов только нет навигации-на картах обозначен вход в отель, но по факту обычный подъезд многоэтажки, ‘достучались до небес’ только тогда, когда созвонились с администратором
Отличное место, большие номера с кухней. Есть посуда и вся необходимая бытовая техника. Лучше заранее бронировать.
Отличная гостиница! Всем советую,очень опрятная и чистая!Хороший сервис,цена соответствует качеству! Все понравилось ,спасибо за качество! Желаю вам процветания и успехов!
Всё замечательно! Отдохнули отлично, всё чисто и аккуратно! 2х комнатный номер, 2 большие кровати))) чистый душ, есть кухня! Спасибо огромное за сервис и гостеприимство!))) Сын был в полном восторге от поездов поблизости))) кстати, они совсем не слвшны! Окна не открывали, есть кондиционеры в каждой комнате! Тишина!
Одни из лучших апартаментов вблизи Москвы. Устроило всё. Чистота, наличие удобств, тишина, расположение, персонал. Если хотите хорошо провести время в арендованном жилье, однозначно держите данный вариант в приоритете!